Description
Exclusive townhouse in the Golden Mile, located in the prestigious Monte Marbella Club, in Lomas de Puente Romano.
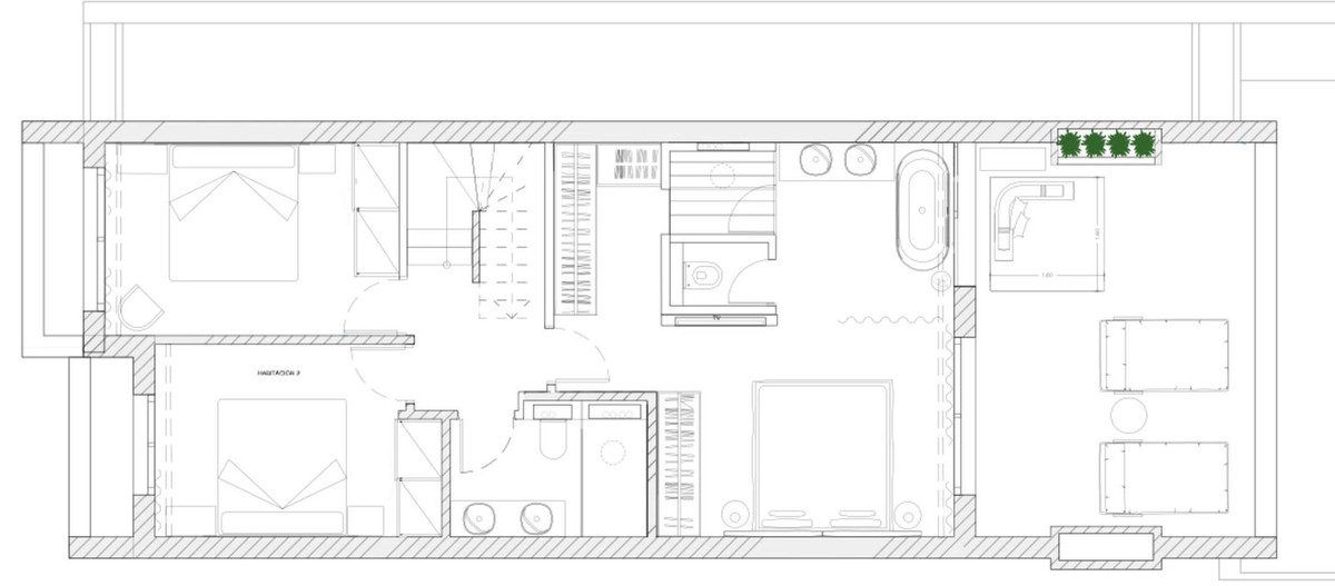
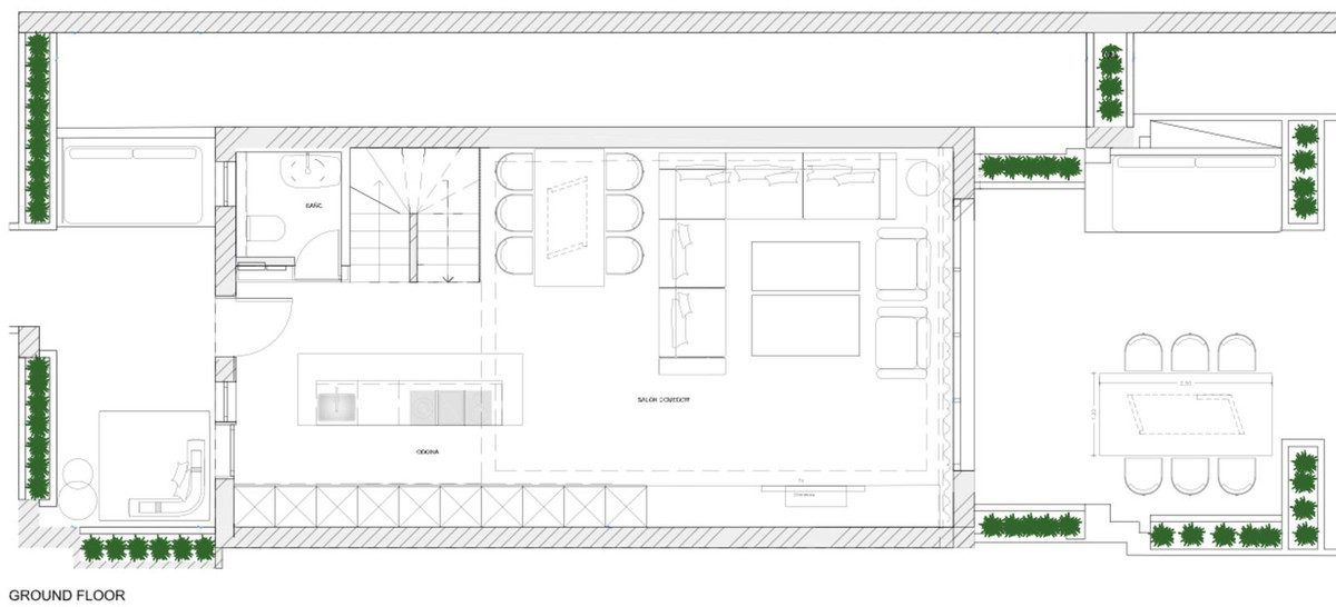
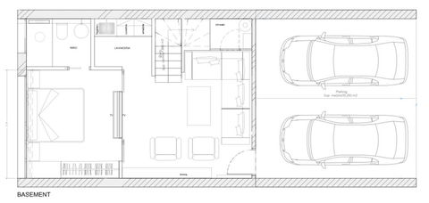
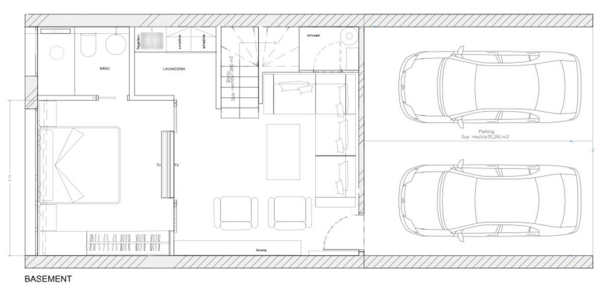
Fully renovated with high-quality materials and elegant design, this property features 4 spacious bedrooms, 3 bathrooms, and a guest toilet.
Large windows provide abundant natural light, a 70 m² terrace offers outdoor space, and the home is set in a peaceful environment just minutes from all amenities.
Built in 2005 and renovated on 2025 it boasts 283 m² of living space and private parking for two cars. Secure gated community. Community fee: €450/month.
Address
Open on Google Maps-
City: Marbella
-
State/county: Málaga
-
Area: The Golden Mile
-
Country: Spain
Details
Updated on 12 sausio, 2026 at 10:49 pm-
Property ID HZR5126059
-
Price 2 150 000 €
-
Property Size 280 m²
-
Bedrooms 4
-
Bathrooms 3.5
-
Year Built 2006
-
Property Type Townhouses
-
Property Status For Sale
Features
Mortgage Calculator
-
Down Payment
-
Loan Amount
-
Monthly Mortgage Payment
