Semi-Detached House in Benalmadena, Costa del Sol – 3 beds – 890000 €
- 890 000 €
Description
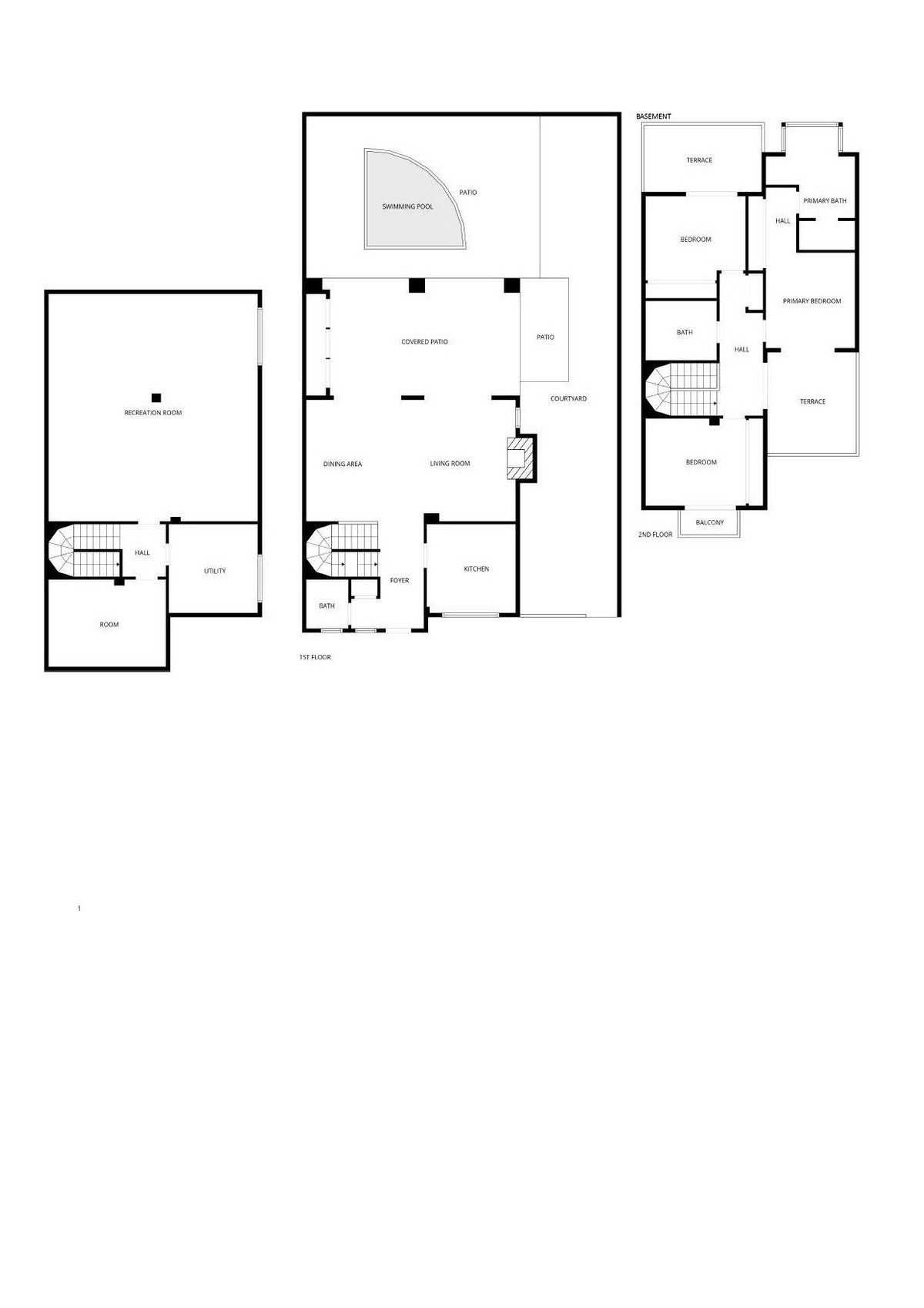
Nestled in the charming heart of Benalmádena Pueblo, this elegant 285 m² semi-detached house blends comfort, space, and unforgettable views.
Step into a warm living room with a cozy fireplace, a bright dining area, and a spacious kitchen—perfect for family life and entertaining. There are on the top floor three comfortable bedrooms with wardrobes from ceiling to floor, two spacious bathrooms and terrace, and on the first floor additionally a guest toilet.
The home offers exceptional outdoor living: two spacious terraces, a big patio, and a 110 m² private garden. Relax by your private pool while admiring serene mountain views and Castillo Colomares. Enjoy the sea view from the front terrace and bedroom.
Additional features include a large multifunctional basement with natural light, big laundry room, storage room and a carport for two cars.
A beautiful blend of tranquility, style, and Andalusian charm— the house is waiting for new owners.
A home that truly has it all. Contact us for a viewing!
Address
Open on Google Maps-
City: Benalmadena
-
State/county: Málaga
-
Area: Benalmadena Pueblo
-
Country: Spain
Details
Updated on January 12, 2026 at 11:08 pm-
Property ID HZR5249044
-
Price 890 000 €
-
Property Size 389 m²
-
Land Area 467 m²
-
Bedrooms 3
-
Bathrooms 2
-
Year Built 2007
-
Property Type Townhouses
-
Property Status For Sale
Features
- Basement
- Covered Terrace
- Double Glazing
- Ensuite Bathroom
- Fitted Wardrobes
- Jacuzzi
- Near Church
- Near Transport
- Private Terrace
- Storage Room
- Utility Room
Mortgage Calculator
-
Down Payment
-
Loan Amount
-
Monthly Mortgage Payment
